Xây Dựng Ưu Việt hân hạnh giới thiệu đến quý khách hàng mẫu thiết kế nhà vườn mái Thái cực hiện đại và sang trọng thiết kế độc quyền bởi Công ty Xây Dựng Ưu Việt. Rất mong quý chủ đầu tư sẽ vừa ý thiết kế này của chúng tôi. Đây là một trong những thiết kế nhà vườn của Xây Dựng Ưu Việt được nhiều sự quan tâm của các chủ đầu tư trong năm vừa qua.
Nhà mái Thái vườn được thiết kế phong cách kiến trúc tinh tế, sang trọng. Với không gian mở, rộng rãi, thoáng mát, bố trí hài hoà, khoa học, cho phép gia đình tận hưởng những tiện nghi hiện đại.
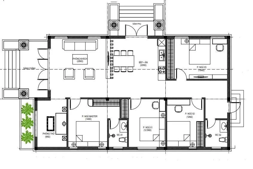
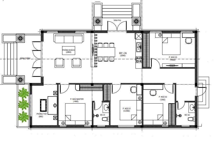
Công năng Mẫu thiết kế
- Diện tích tầng trệt: 8.6×18.5m2; Sảnh trước:3.5×2.7m2; Sảnh bên:2.5×1.1m2
- Công năng: Phòng khách, Phòng đa năng, Khu vực bếp, Phòng vệ sinh chung, Phòng giặt, Phòng ngủ nhỏ, 2 x Phòng ngủ lớn (Có phòng vệ sinh riêng), Phòng thờ.
Hình ảnh Mẫu thiết kế nhà vườn
Lý do khách hàng chọn chúng tôi
Lợi ích và sự hài lòng của khách hàng luôn là một trong những ưu tiên hàng đầu của Xây Dựng Ưu Việt. Tập thể chúng tôi luôn cố gắng nâng cao chất lượng để phục vụ quý chủ đầu tư tốt nhất.
- Miễn phí khảo sát, tư vấn tận nơi
- Giá rẻ nhất khu vực, cam kết thi công đúng tiến độ.
- Công khai, minh bạch tất cả chi phí thi công cũng như toàn bộ nguyên vật liệu sử dụng
- Được sử dụng nguyên – vật liệu chất lượng và hiện đại nhất
- Bảo hành 10 năm kết cấu tất cả công trình
- Có kỹ sư nước ngoài giám sát thi công
- Miễn phí giấy phép xây dựng và tất cả thủ tục pháp lý liên quan
- Miễn phí thiết kế trọn gói trị giá 30,000,000đ
- Miễn phí tư vấn phong thuỷ: Gói trị giá 10,000,000đ
Thông tin liên hệ công ty
Trụ sở chính: 435/284/26 Phạm Văn Đồng,Phường 11,Quận Bình Thạnh,TP HCM
Chi nhánh: 116B, đường BD13, Mỹ Phước, Bến Cát, Bình Dương
Chi nhánh: Số 82 TK2, Bà Điểm, Hóc Môn, TPHCM
Điện thoại: 0909 196 206
Địa chỉ email: trusochinh@xaydunguuviet.com.vn
Tham khảo các dịch vụ chúng tôi: Bảng báo giá | Báo giá Thiết Kế ngôi nhà đẹp | Báo giá Sửa Chữa nhà trọn gói | Báo giá Xây Nhà phần thô | Báo giá Xây Nhà trọn gói






